Skip to content
Menu
Fabrication
Manufacturing
Architecture
Contact
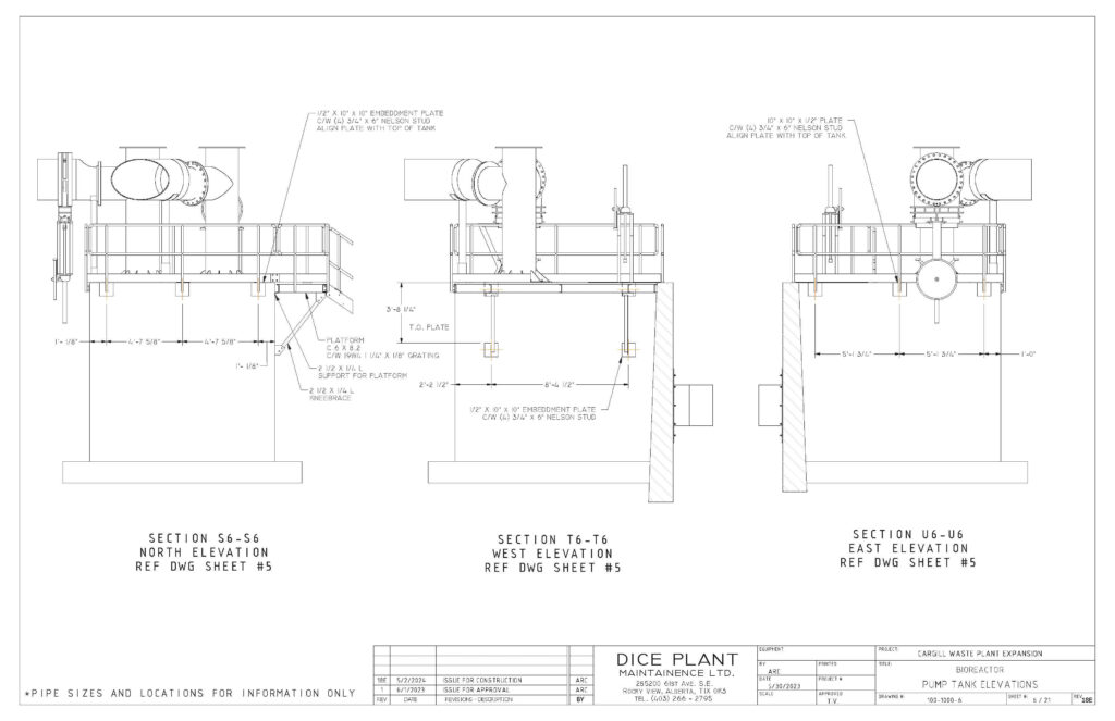
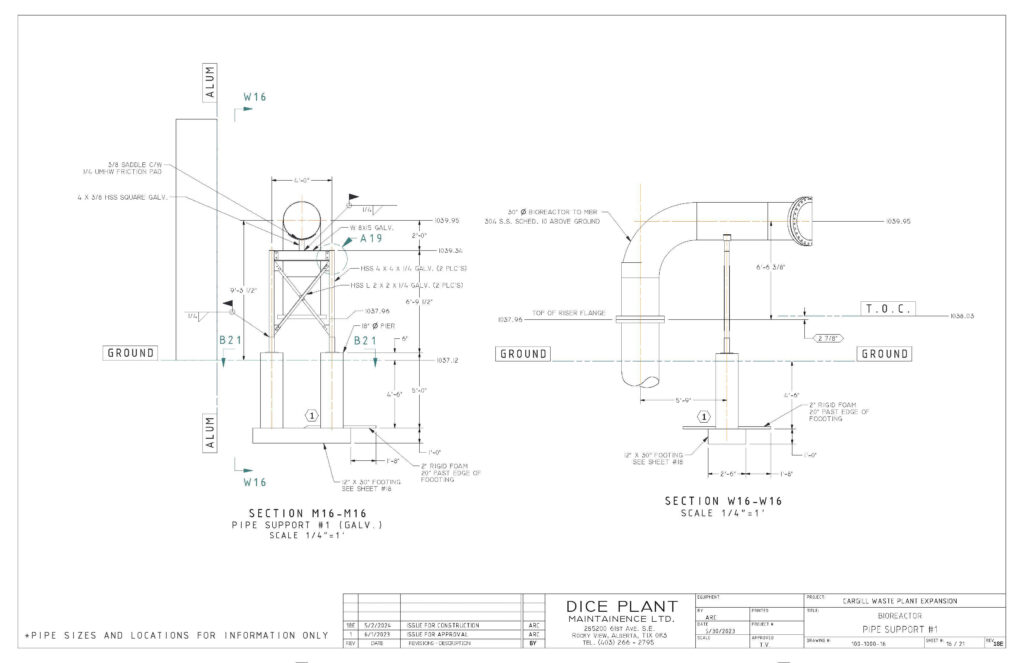
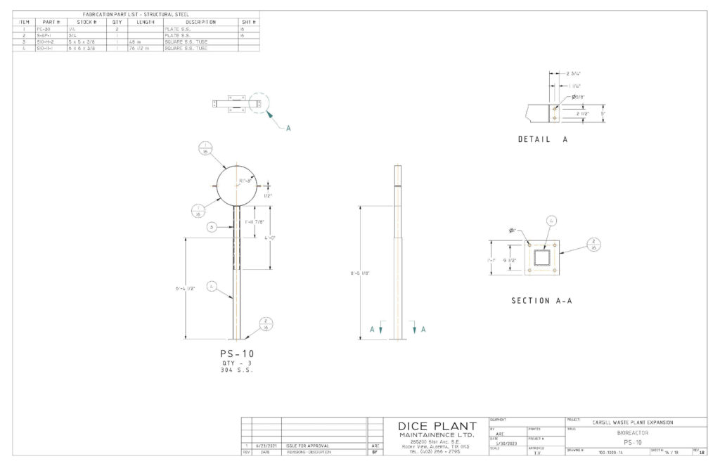
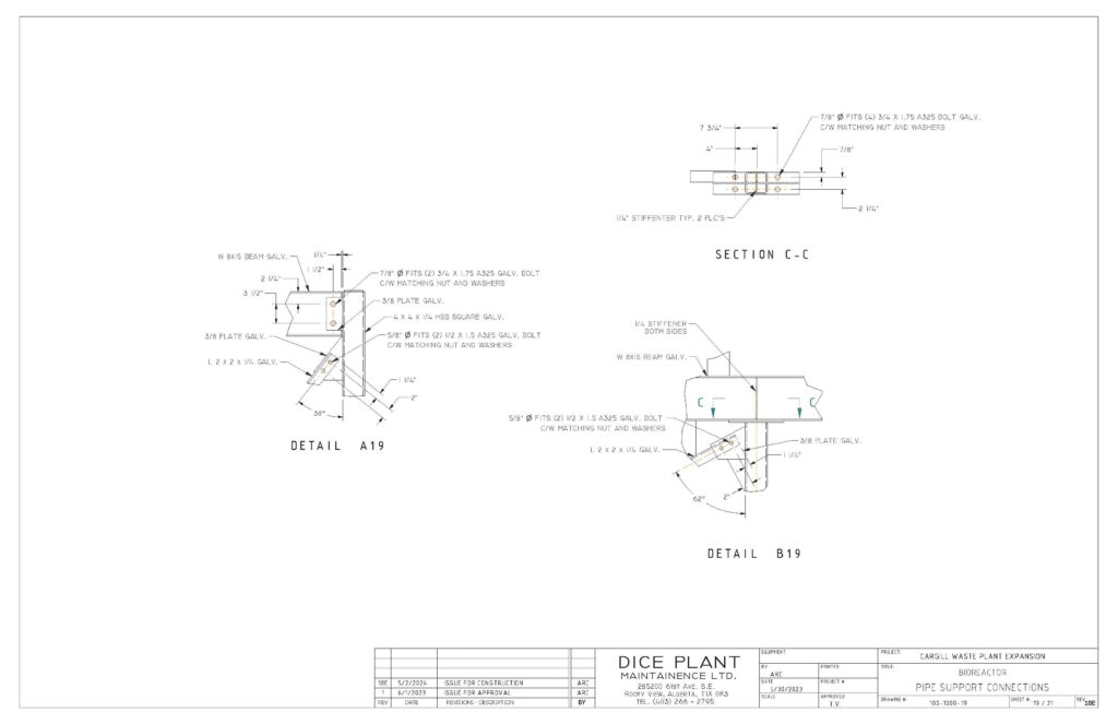
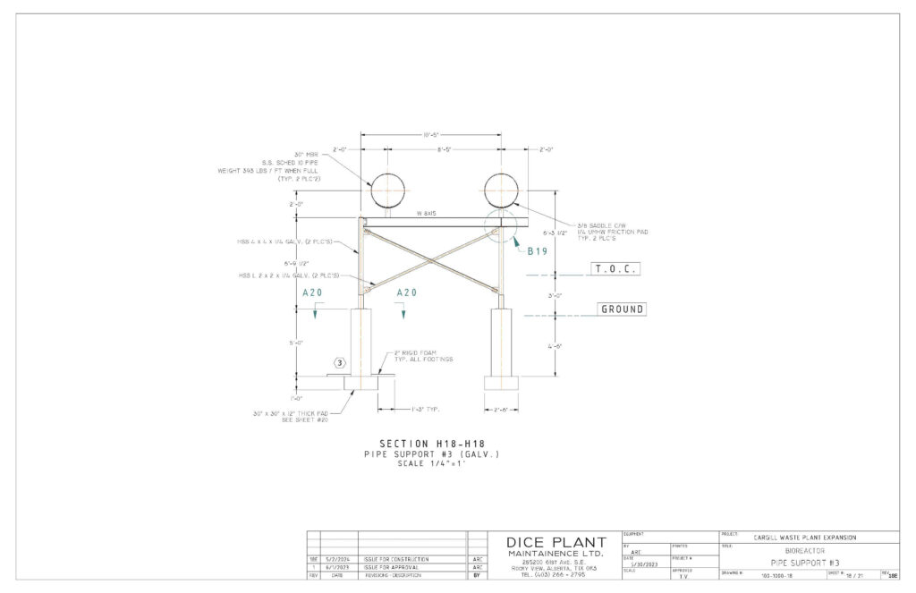
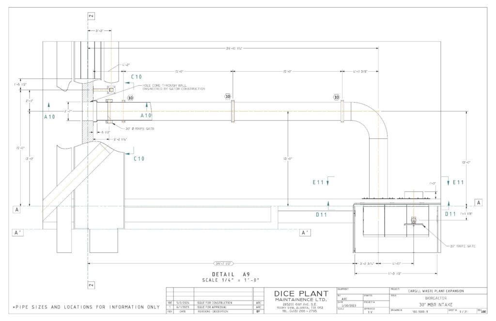
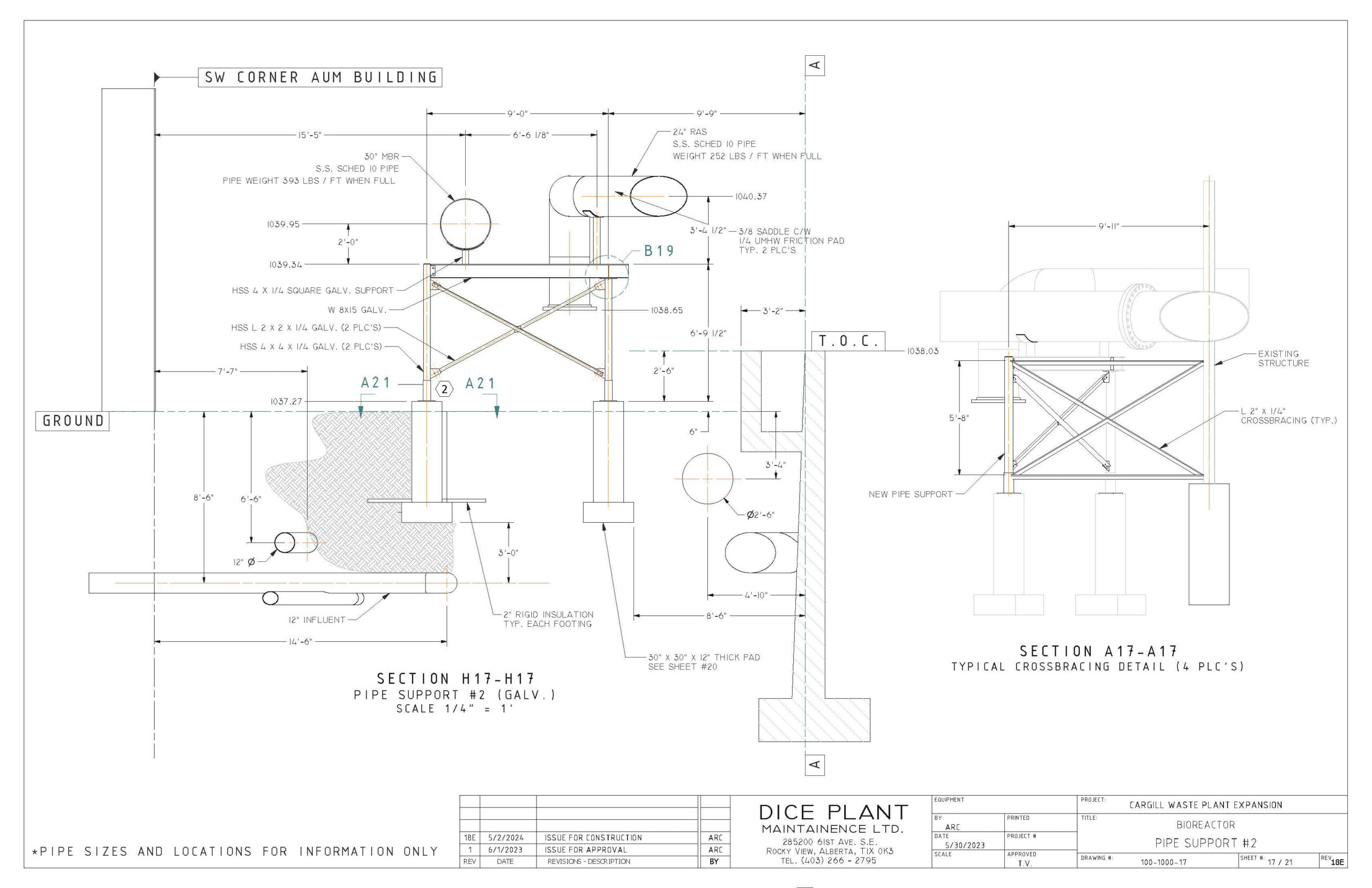
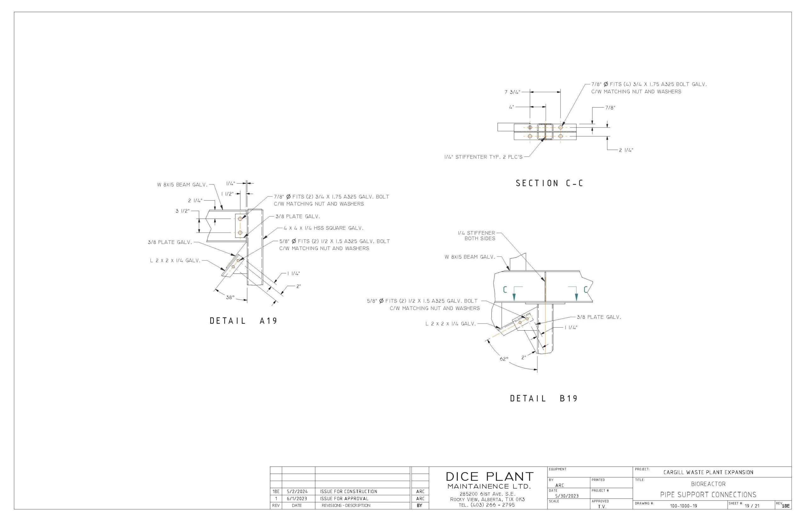
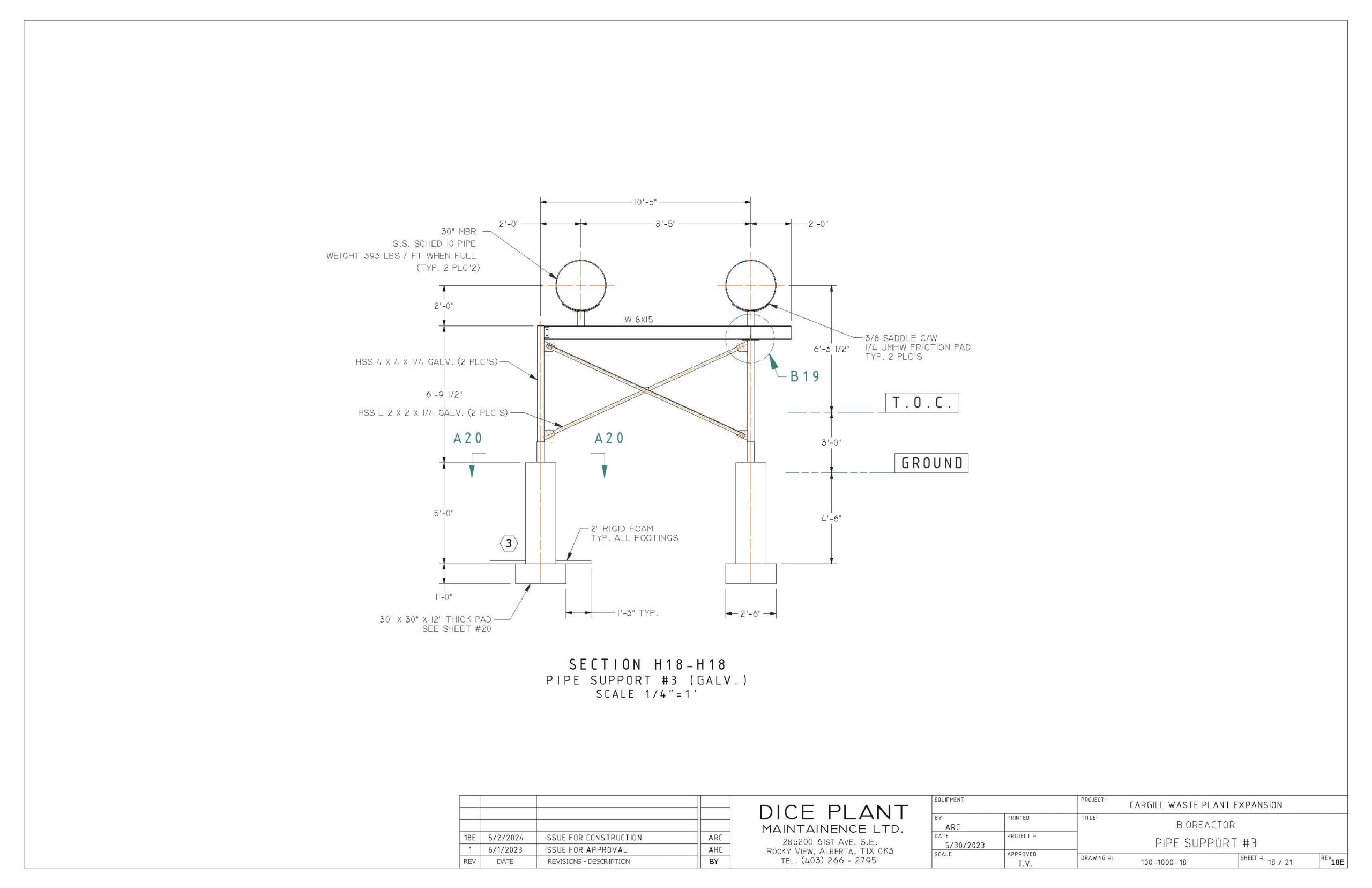
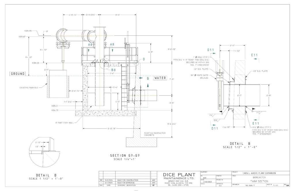
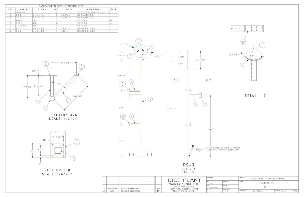
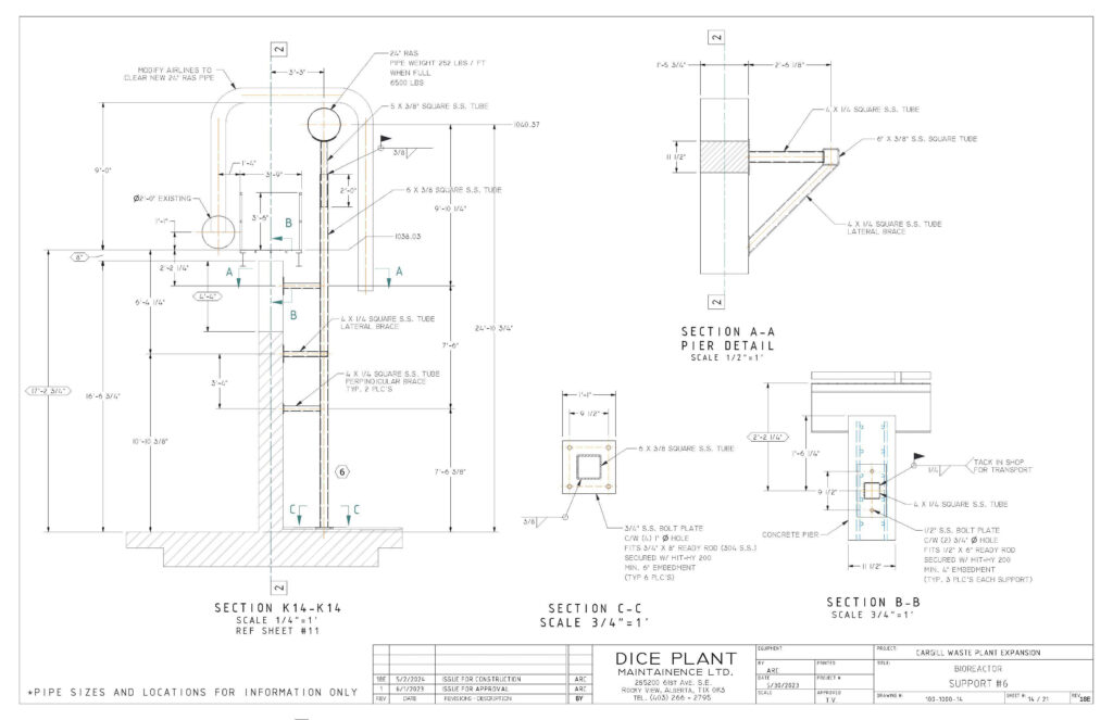
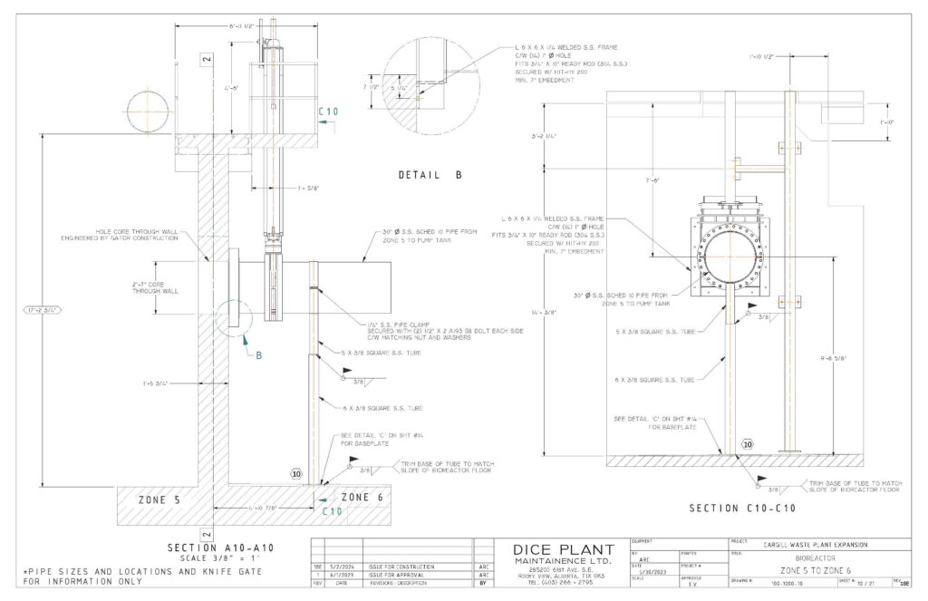
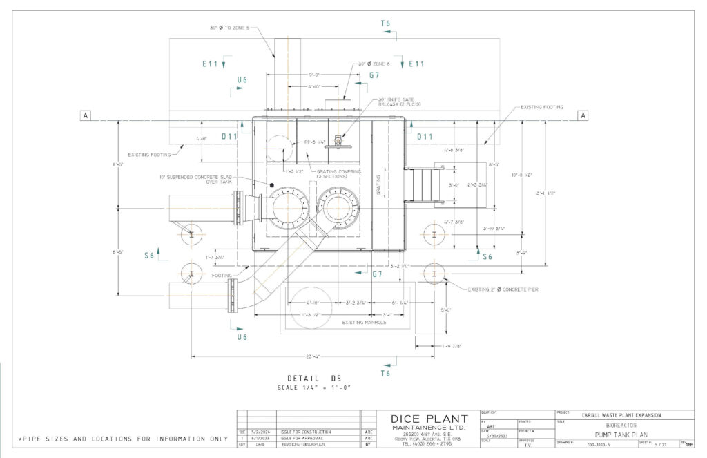
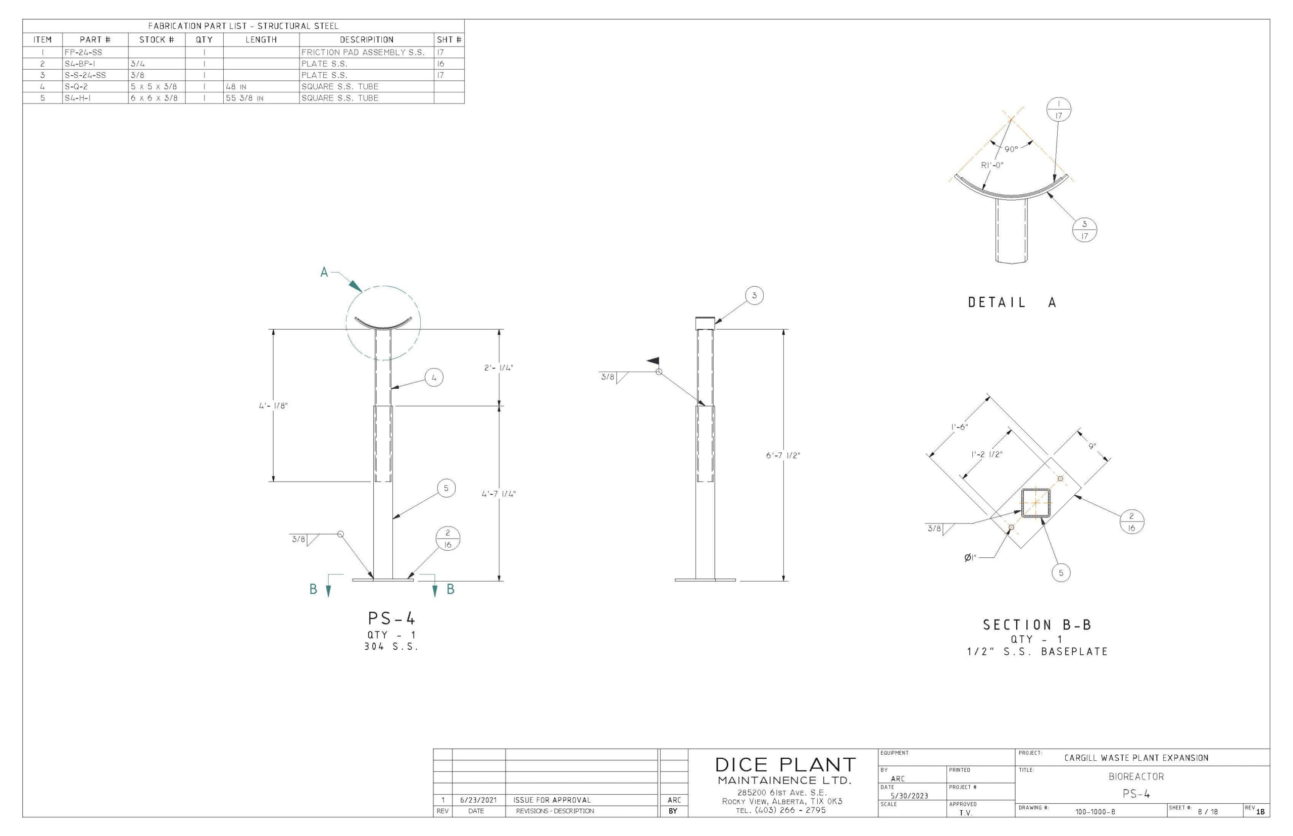
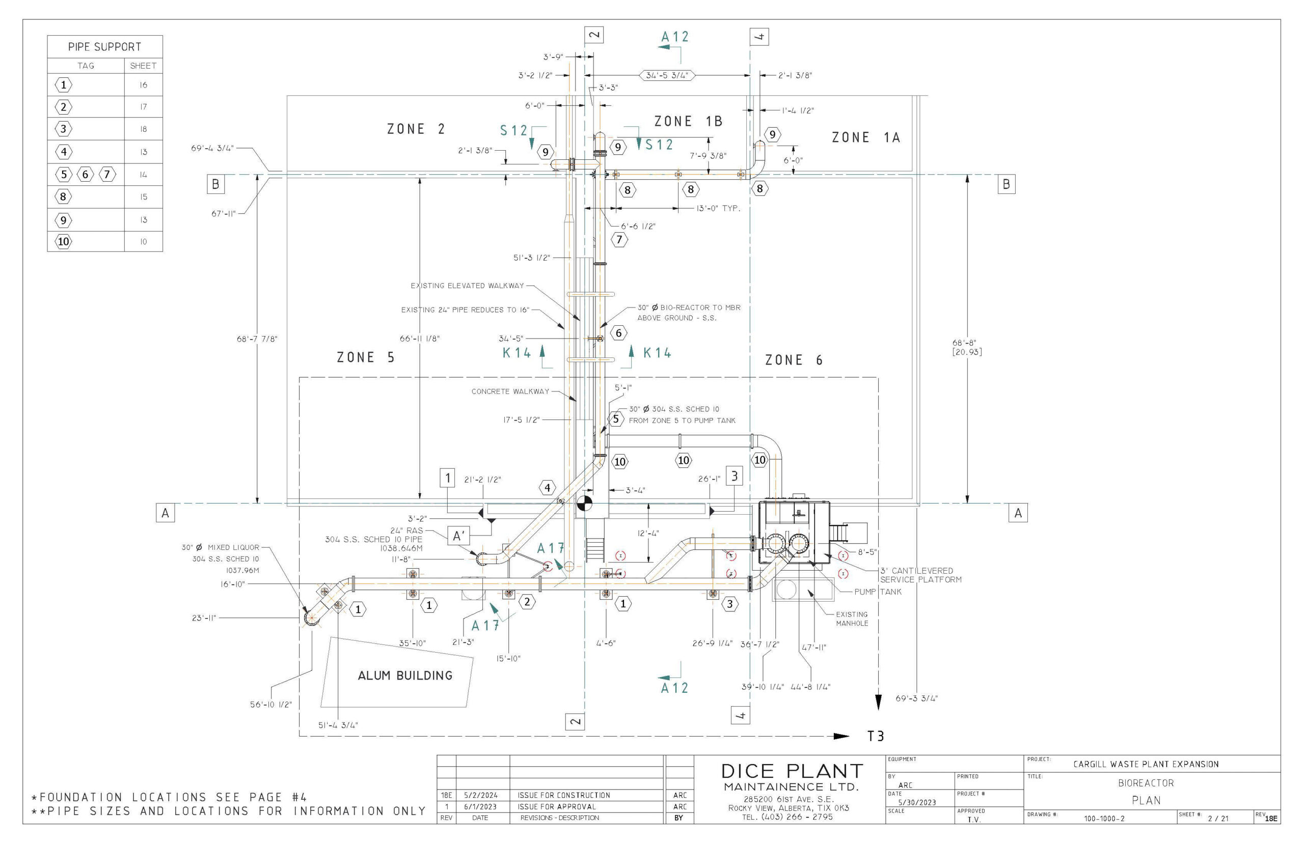
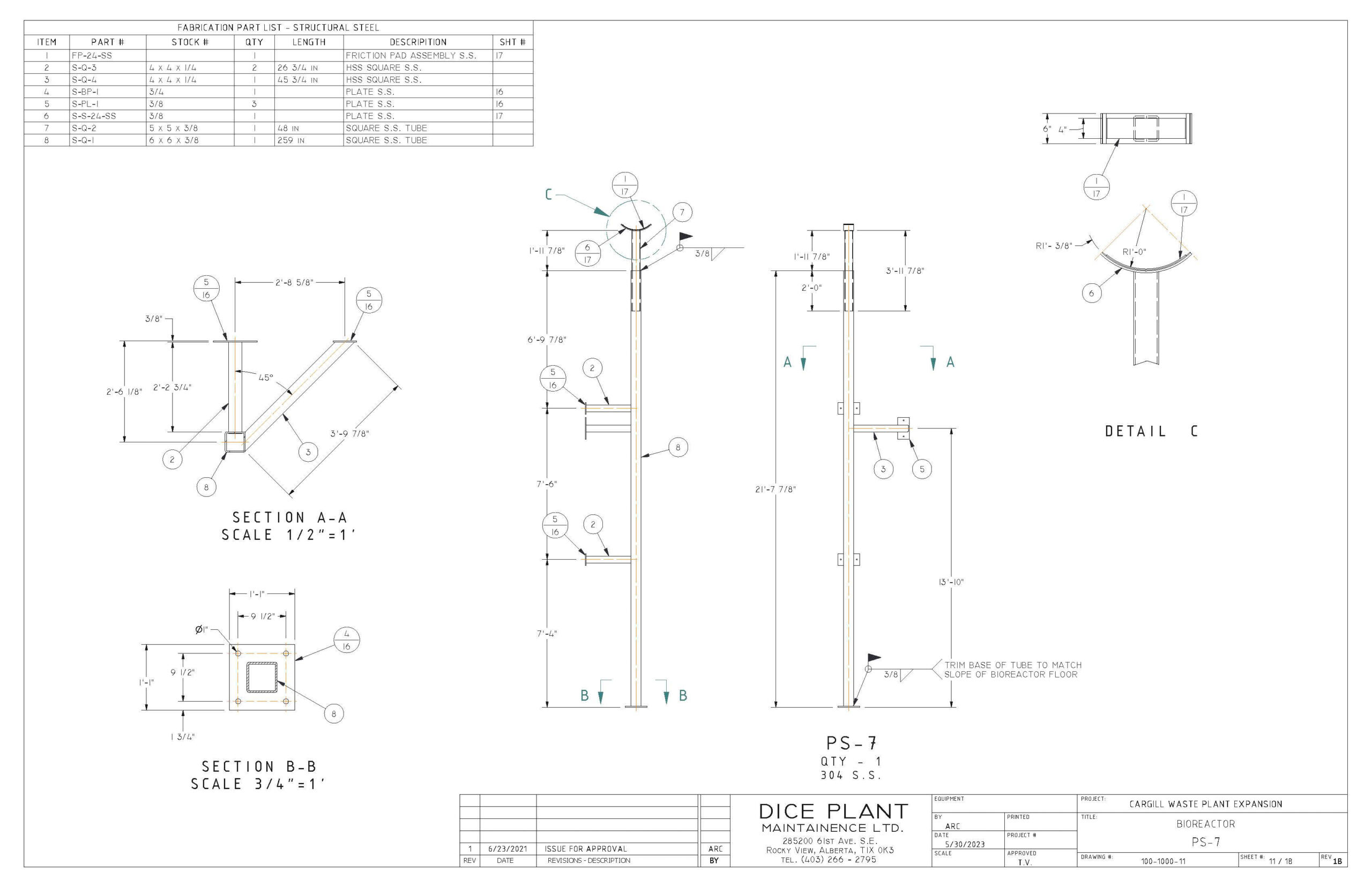
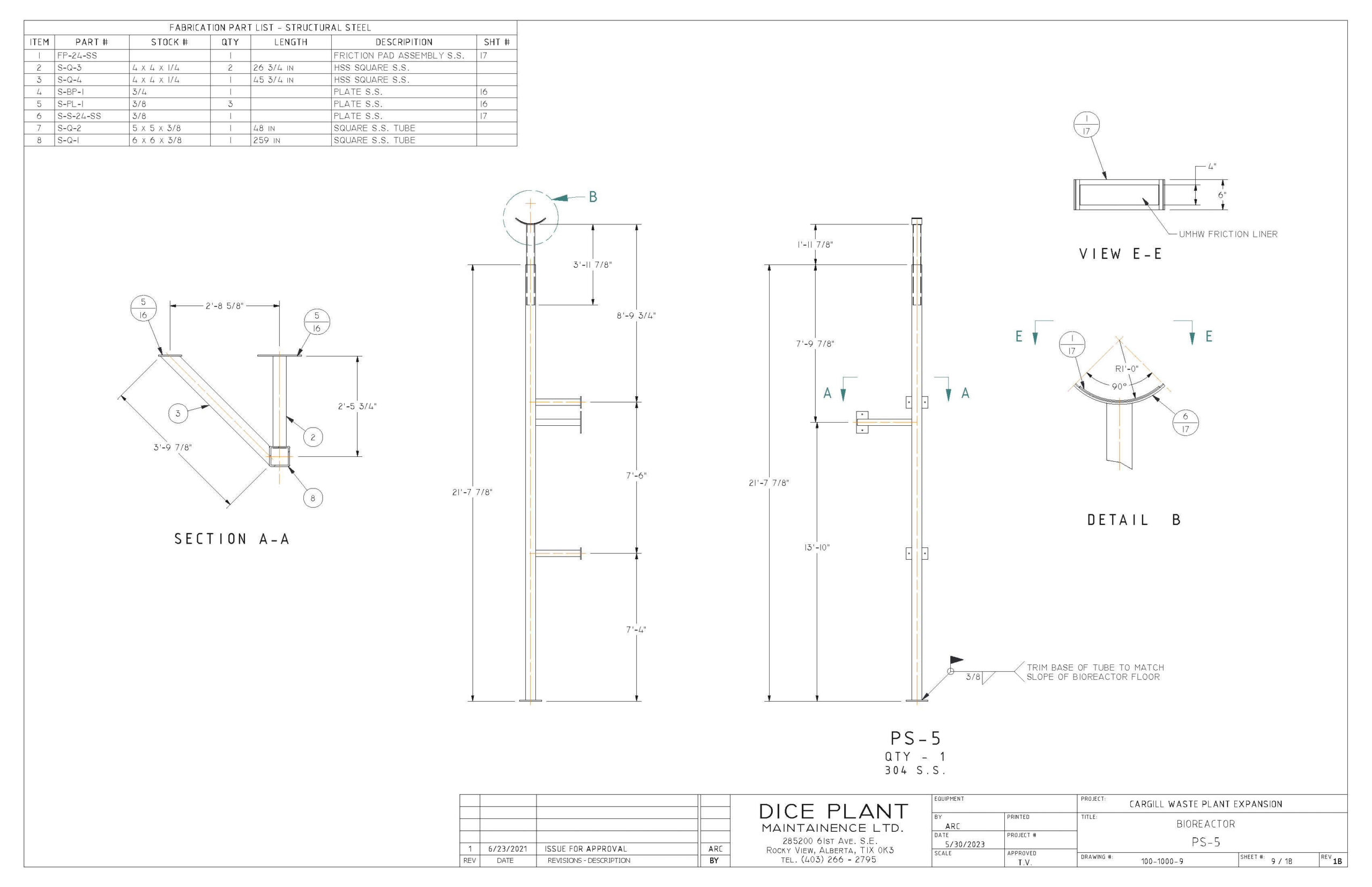
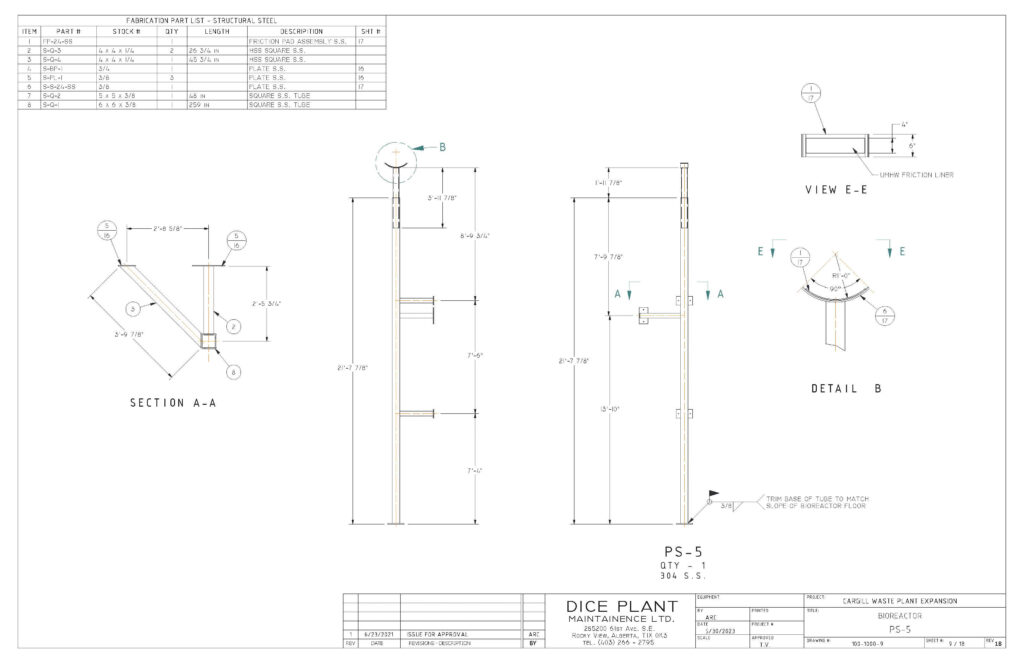
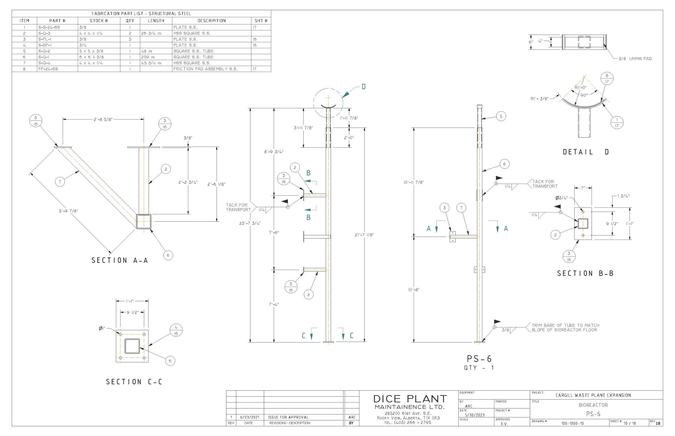
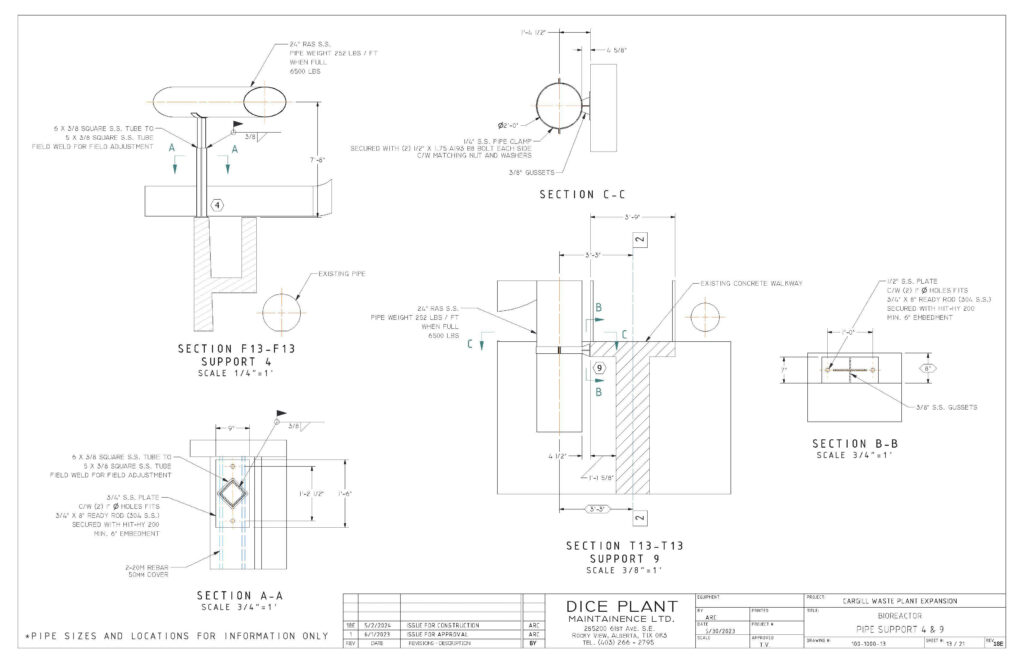
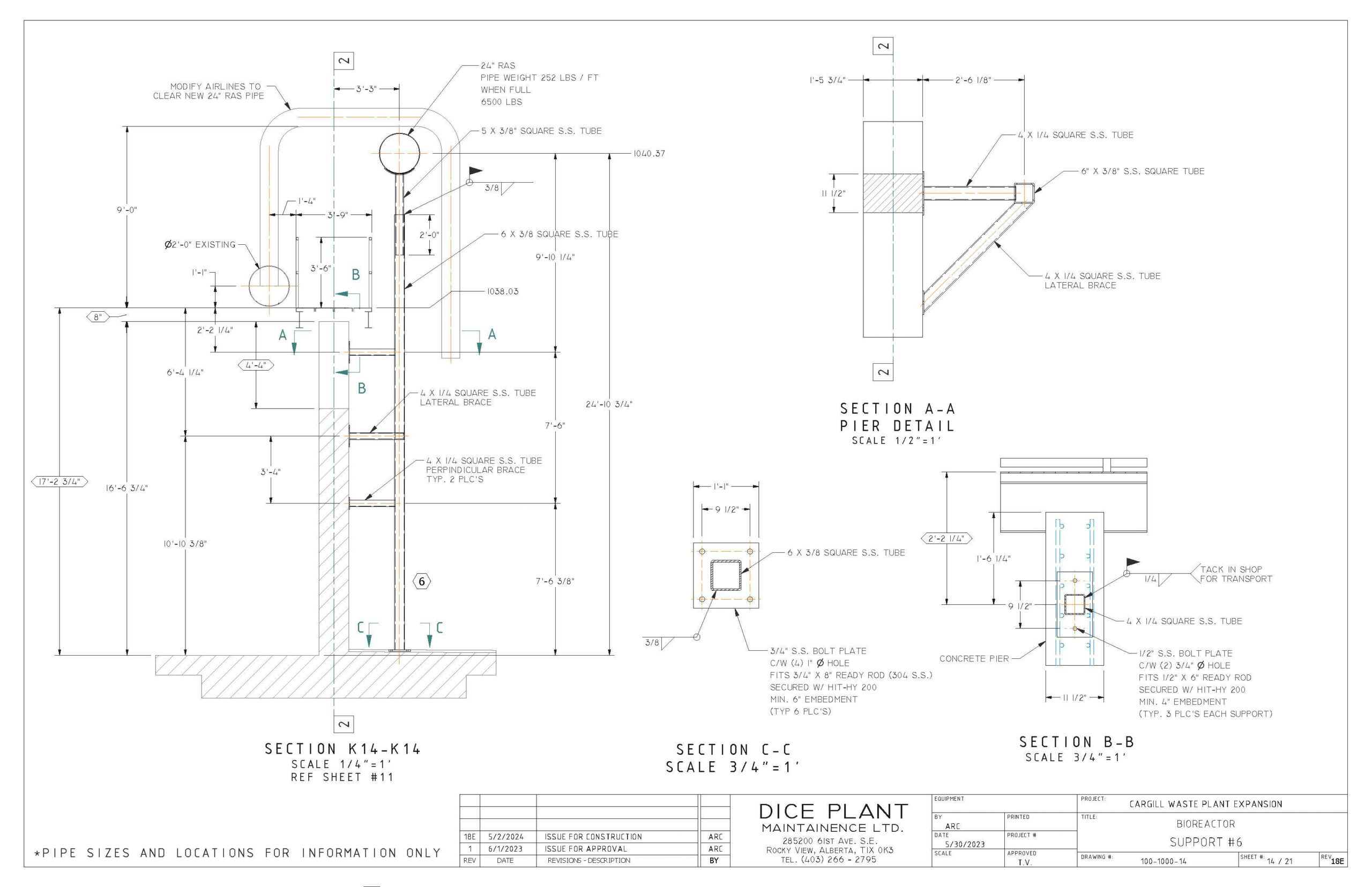
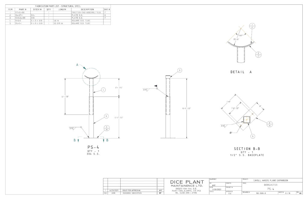
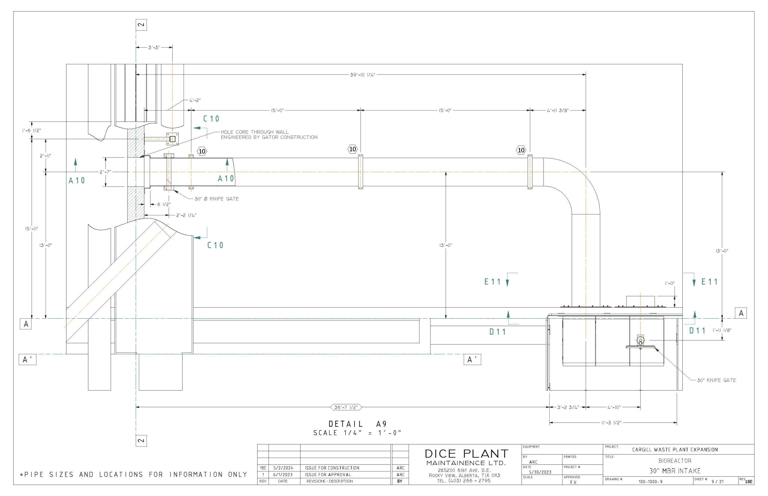
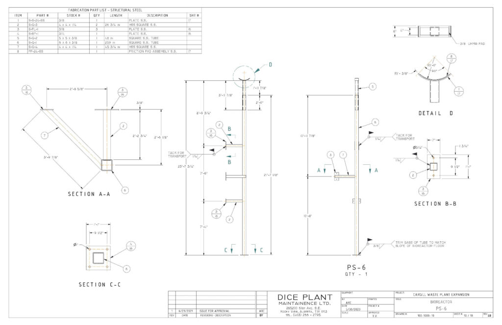
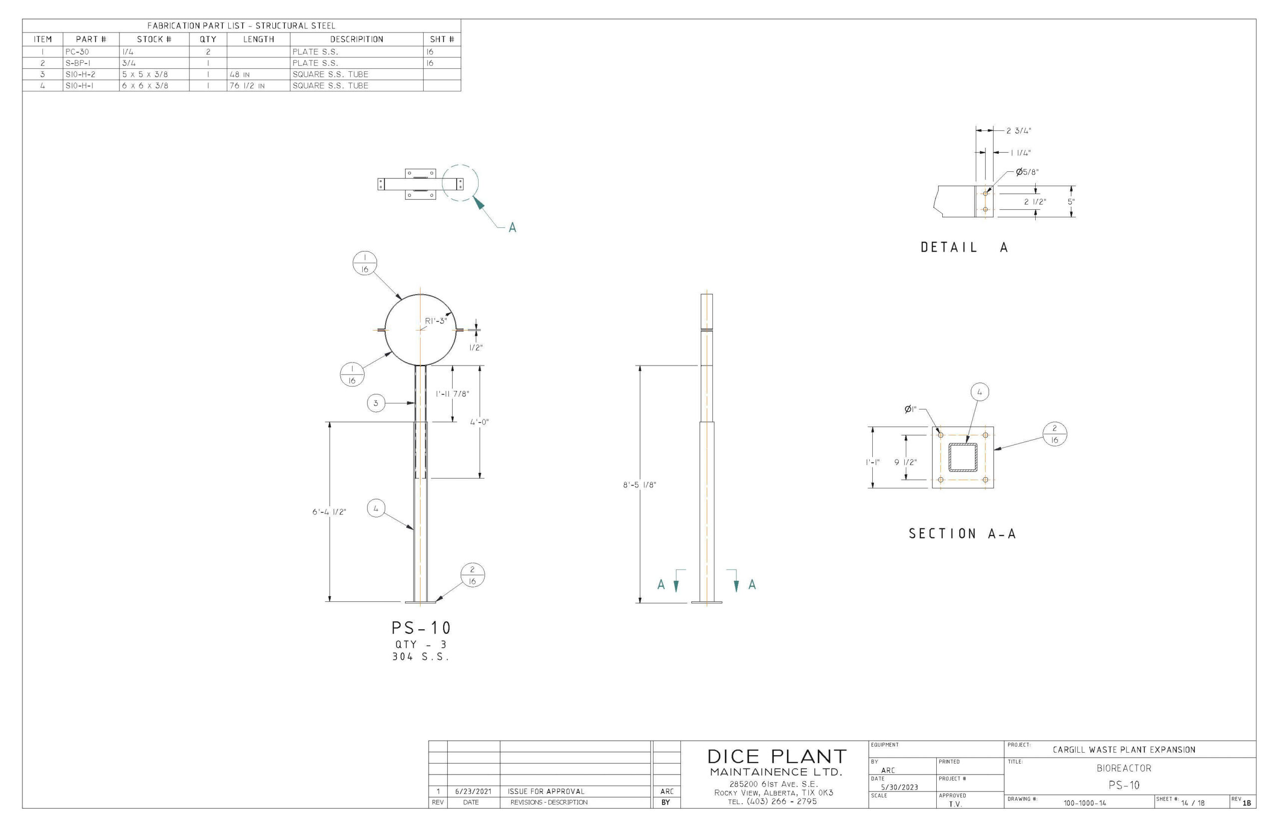
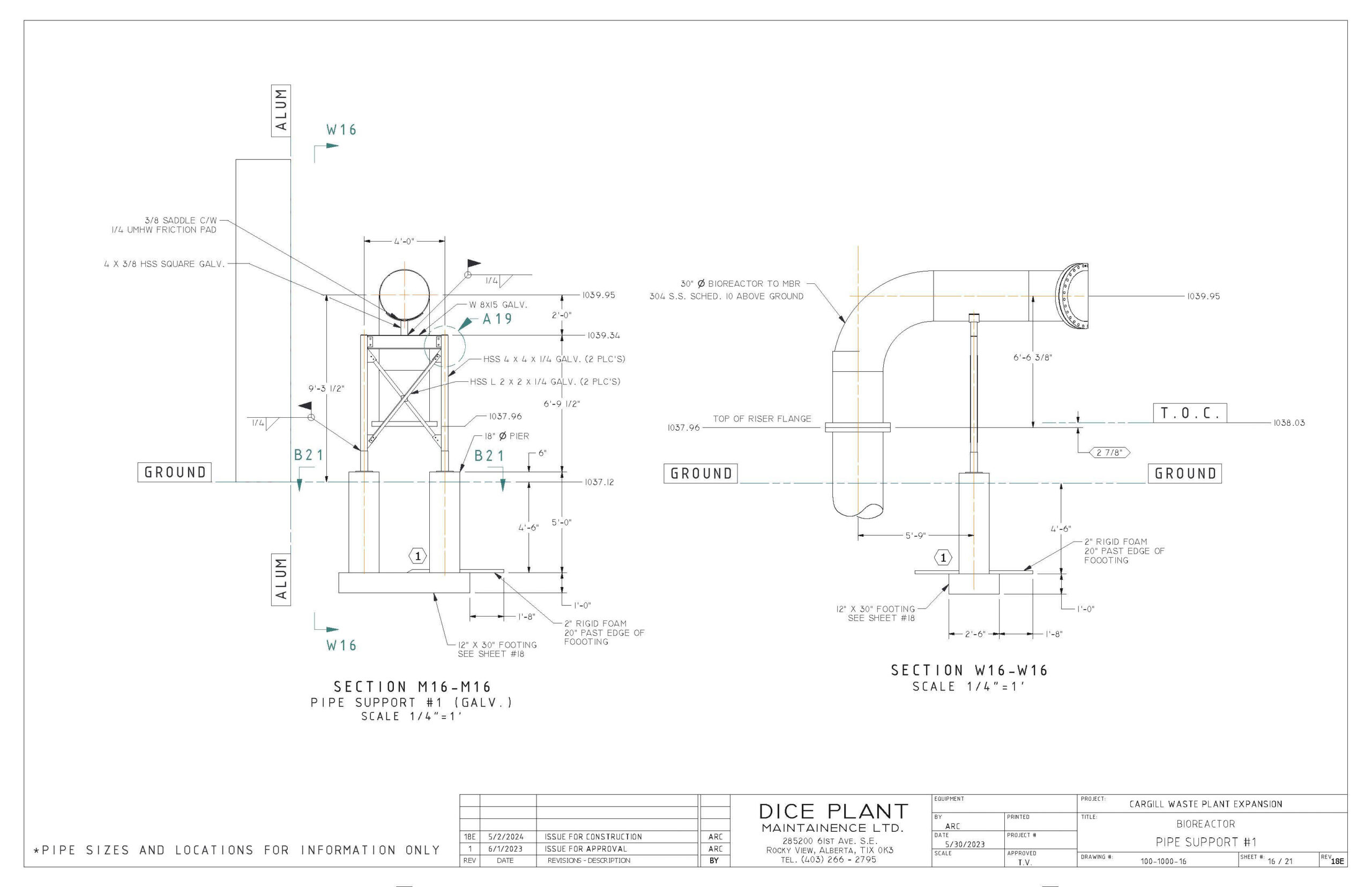
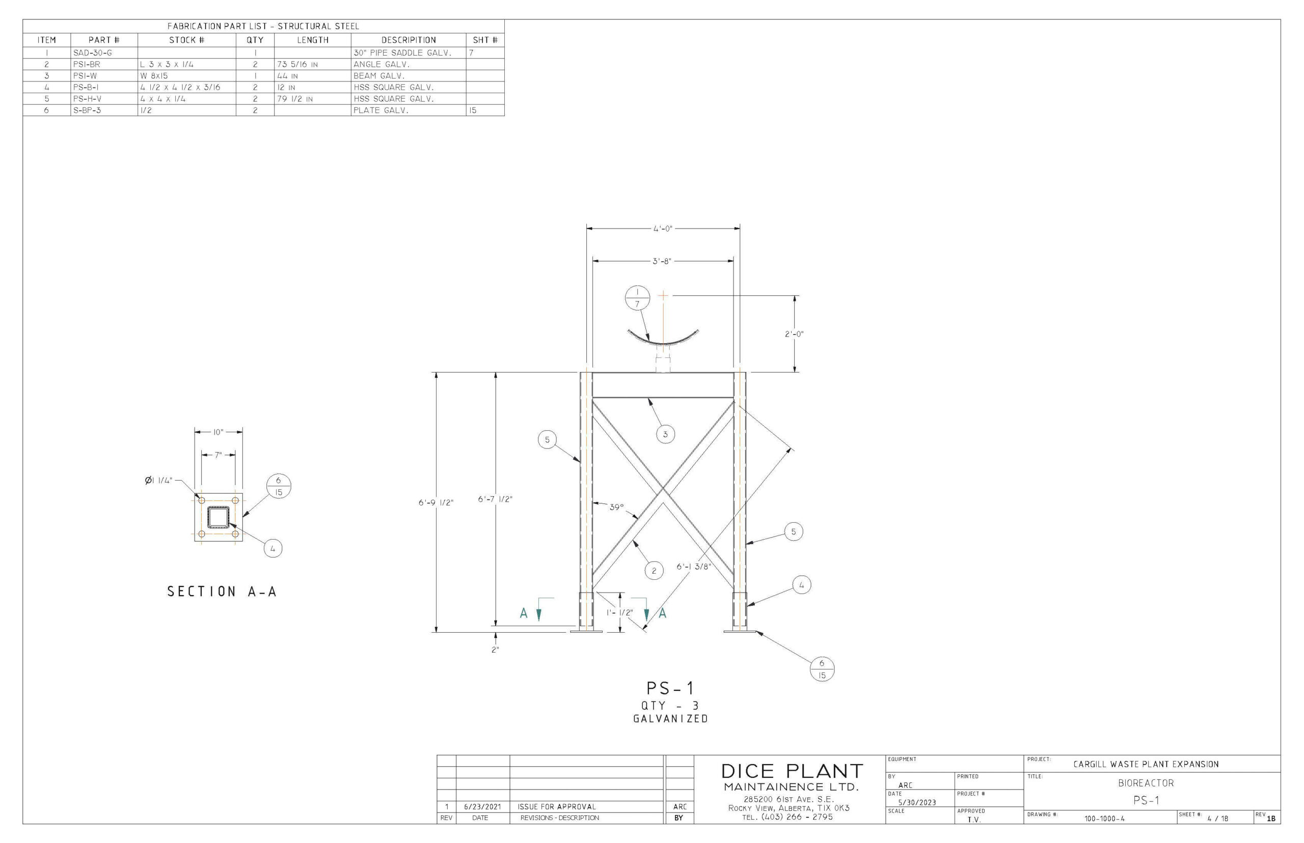
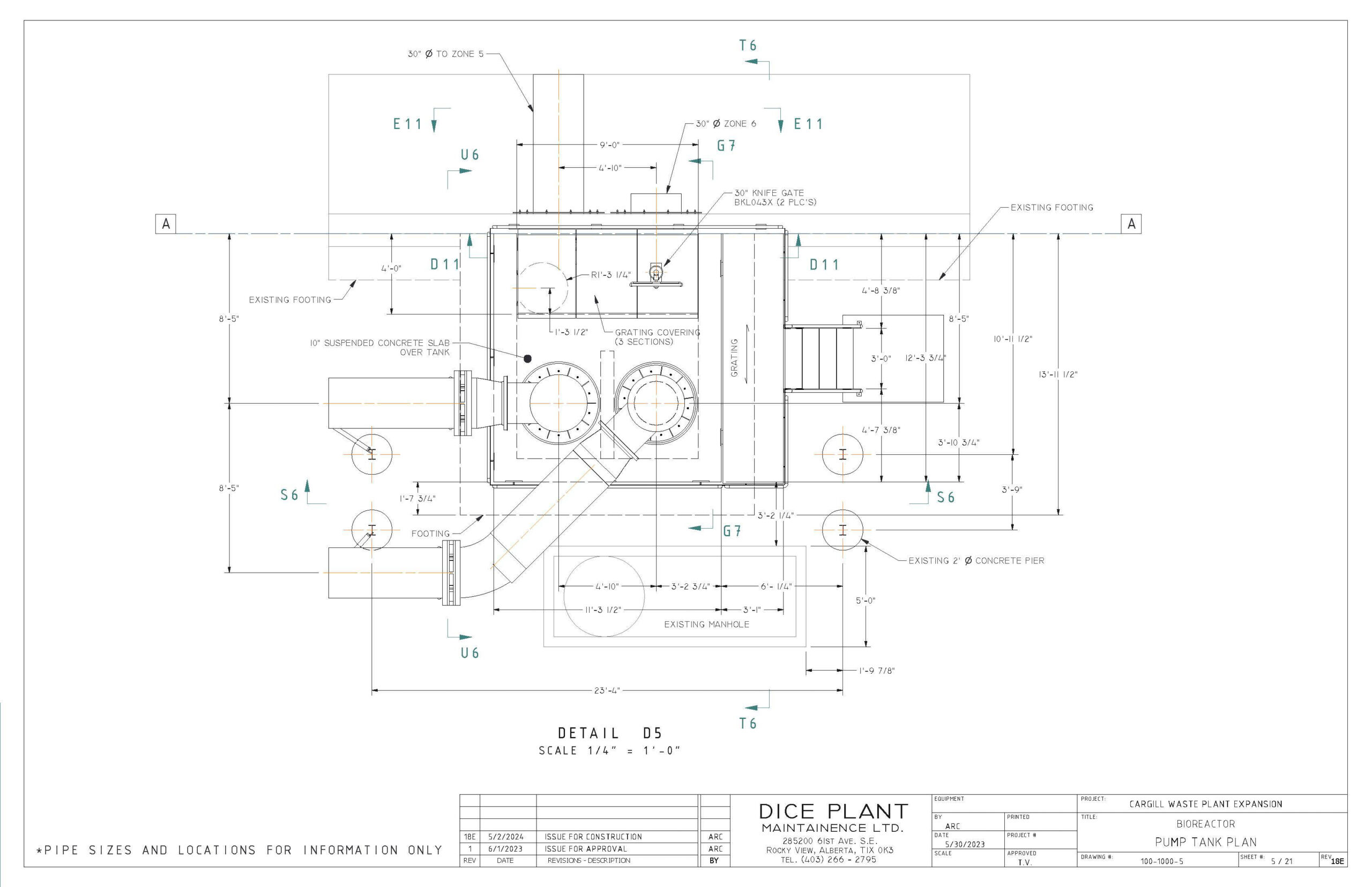
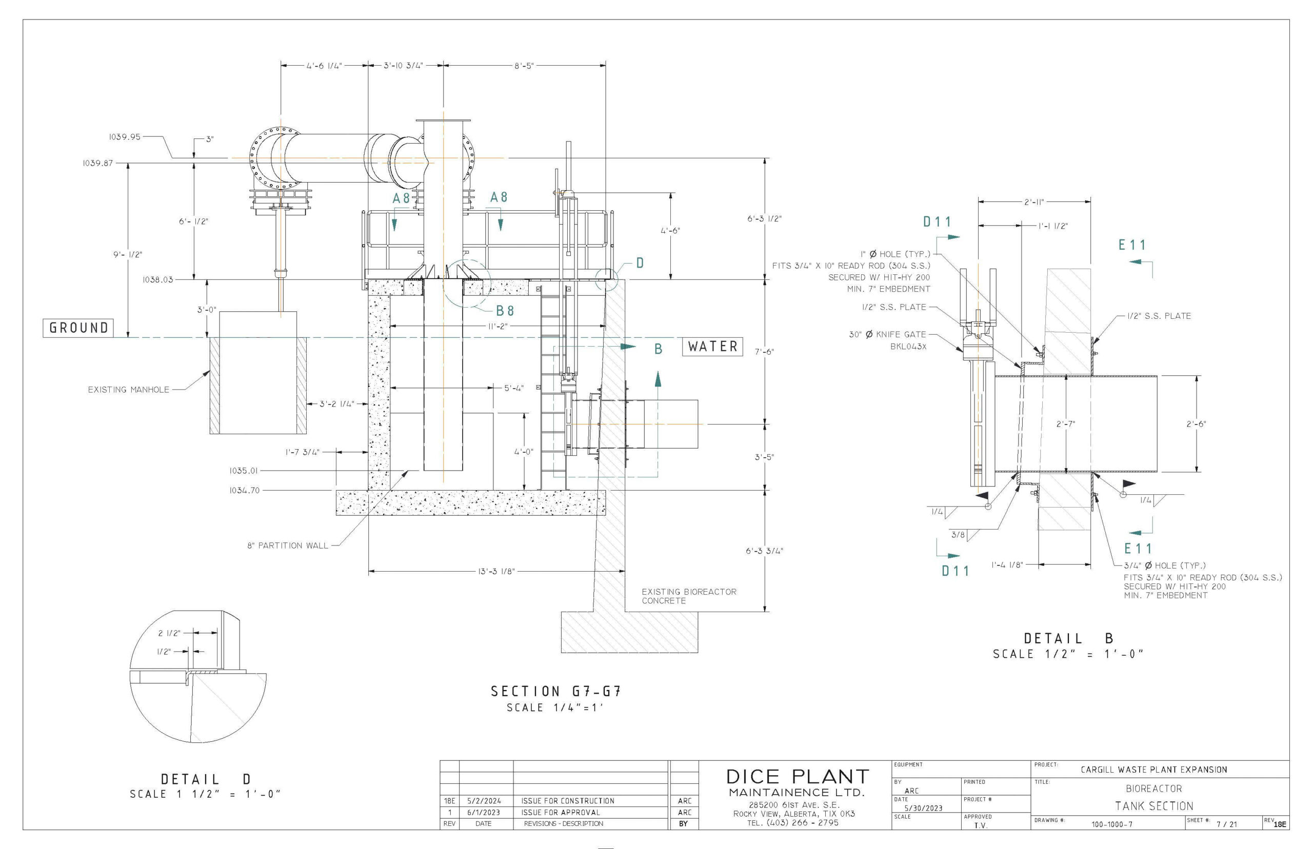
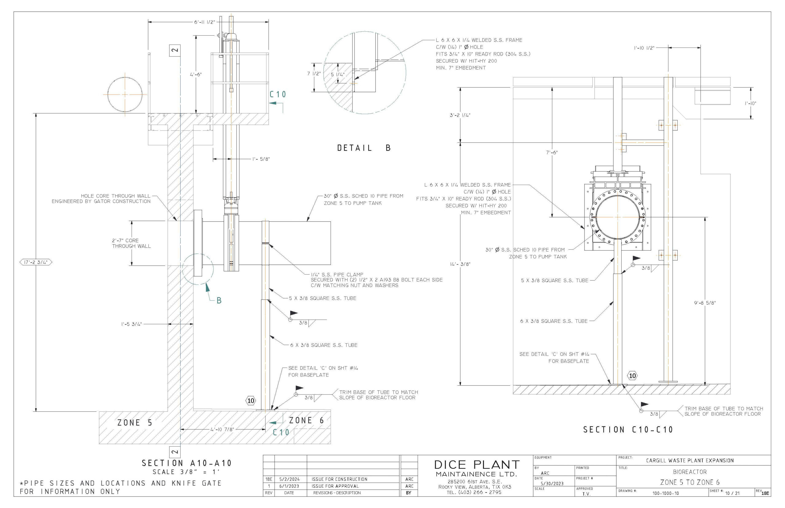
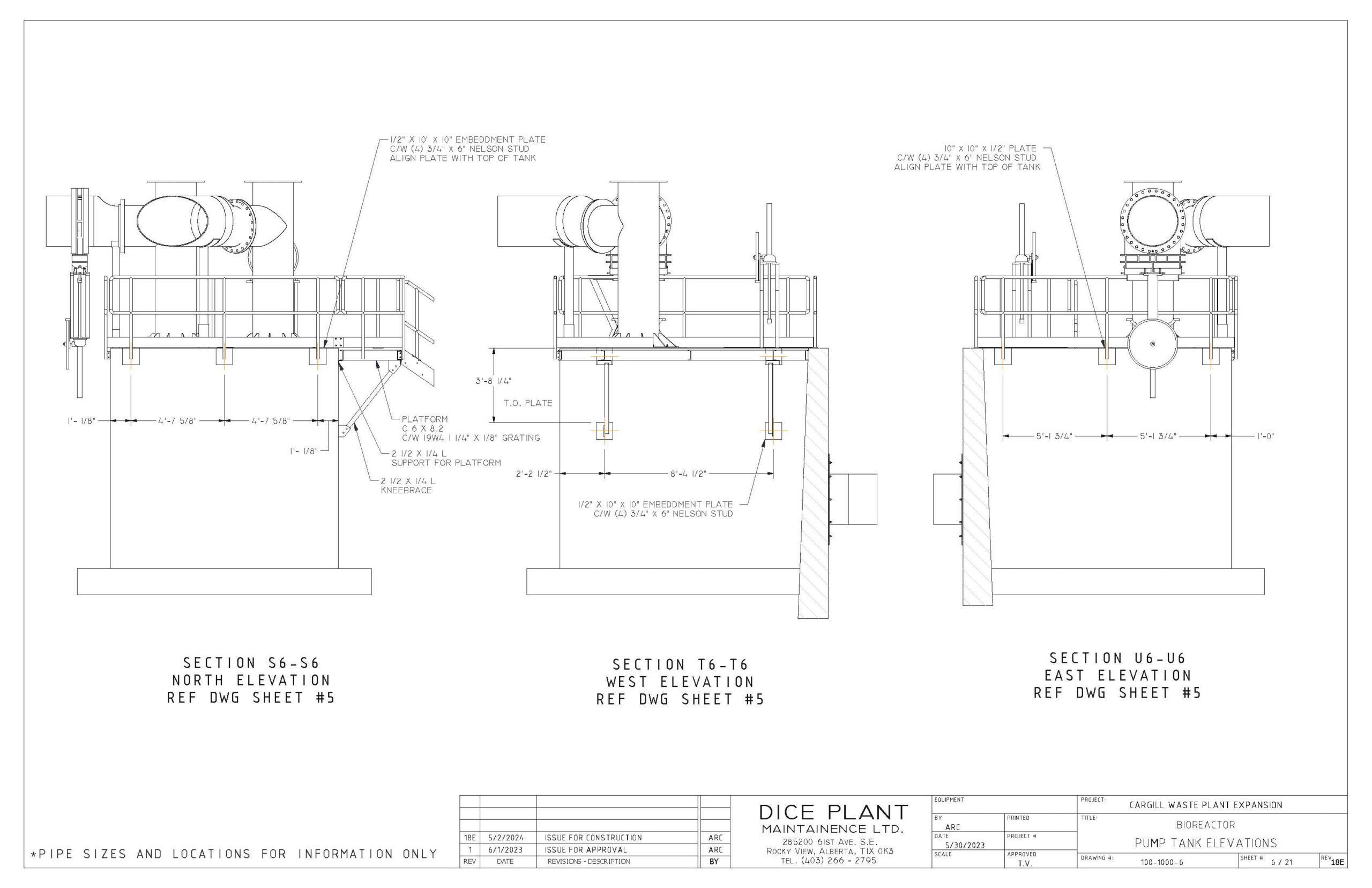
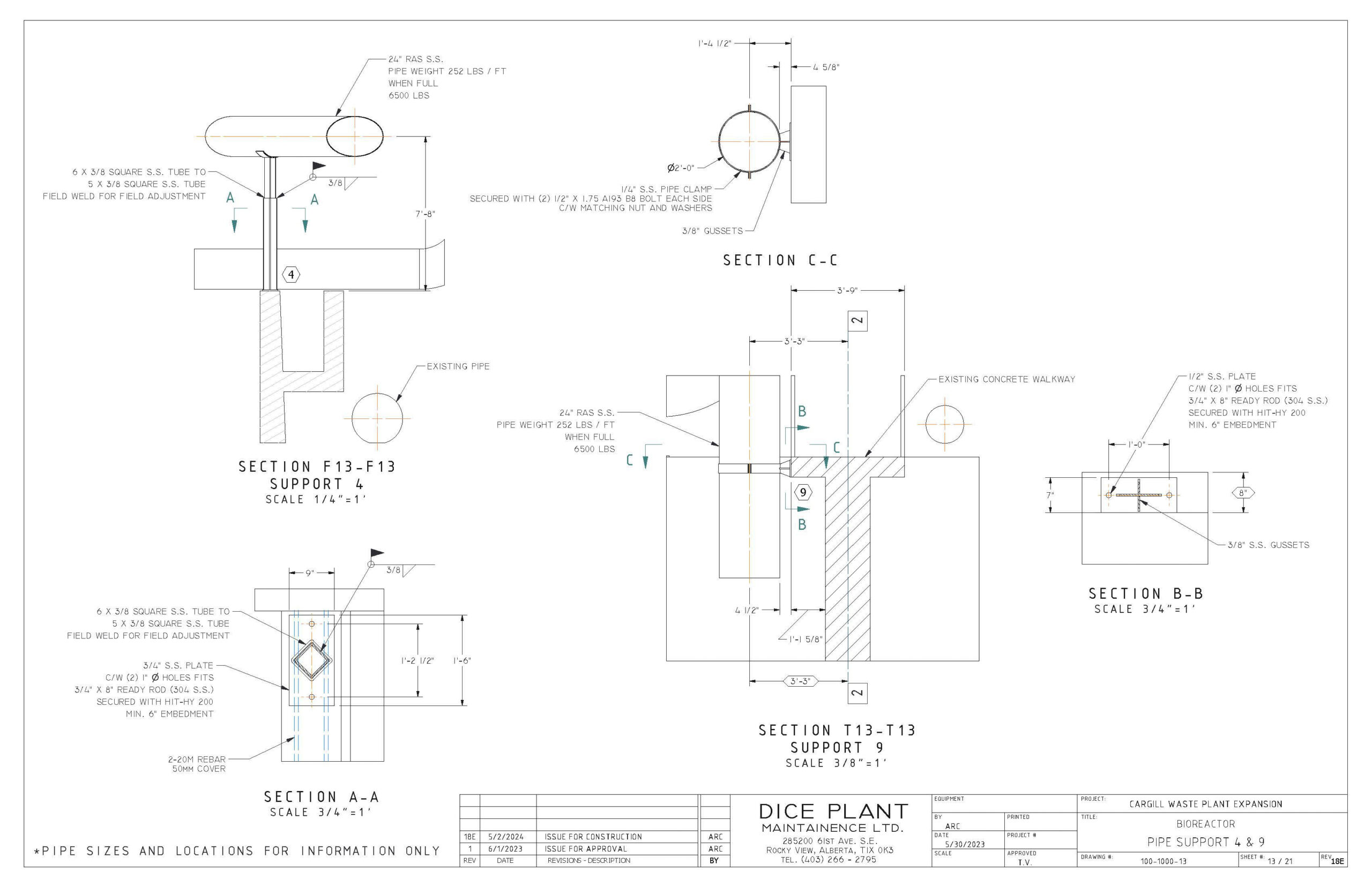
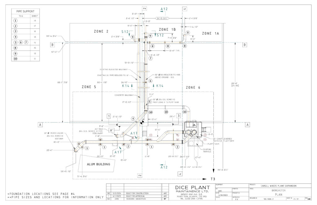
Bioreactor